Immeuble 150 m²
Halluin (59250)A propos de ce bien
Opportunité pour artisan ou investisseur :
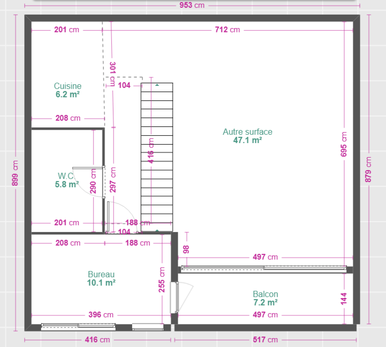
Immeuble à usage commercial comprenant des bureaux de 70m2 à l'étage et du stockage/garage en RDC. L'immeuble donne accès à 4 emplacements de parking.Possibilité de diviser en créant une habitation à l'étage.
VRC Immobilier vous propose un prix de vente fixé à 229 000 €.
Alors, on visite ?
Suivez-nous sur les réseaux sociaux Facebook et Instagram : VRC Immobilier
Les informations sur les risques auxquels ce bien est exposé sont disponibles sur le site Géorisques : www.georisques.gouv.fr
Caractéristiques de ce bien
- Surface 150 m²
- carrez 150 m²
- 2 garage(s)
- 4 parking(s)
- balcon
