Bureaux 150 m²
Halluin (59250)A propos de ce bien
Opportunité pour artisan ou investisseur :
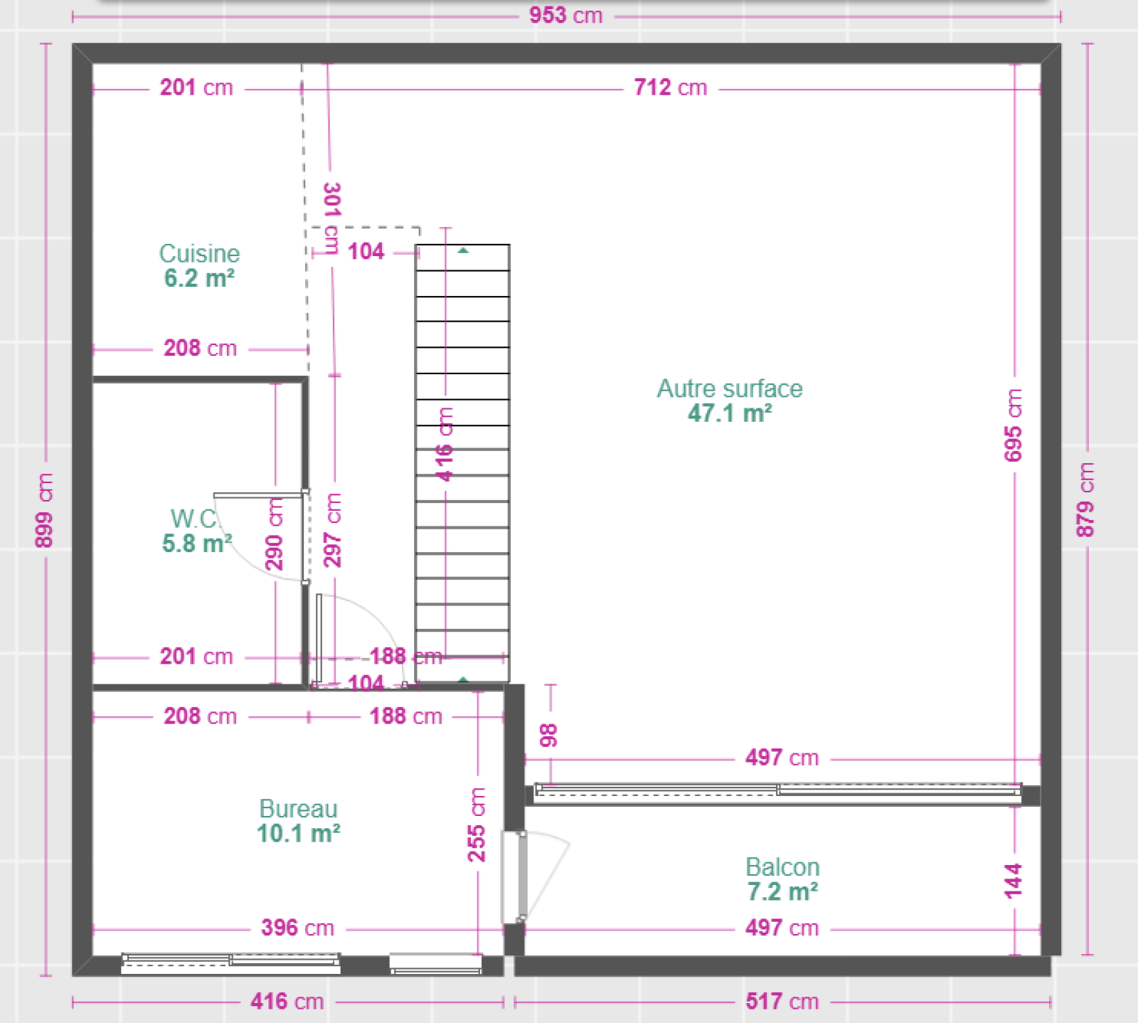
Immeuble à usage commercial comprenant des bureaux de 70m2 à l'étage et du stockage/garage en RDC. L'immeuble donne accès à 4 emplacements de parking.Possibilité de diviser en créant une habitation à l'étage.
VRC Immobilier vous propose un prix de vente fixé à 229 000 €.
Alors, on visite ?
Suivez-nous sur les réseaux sociaux Facebook et Instagram : VRC Immobilier
Les informations sur les risques auxquels ce bien est exposé sont disponibles sur le site Géorisques : www.georisques.gouv.fr
Caractéristiques de ce bien
Activités
- Type de transaction Bureaux
Agencement
- Superficie m2 150 m²
Secteur
- Code postal 59250
- Ville Halluin
Agencement extérieur
- Nombre d'étage 1
